浦东“千人摇”楼盘加推五期,新规划细节曝光
凤凰网房产上海 2025-08-05 10:25
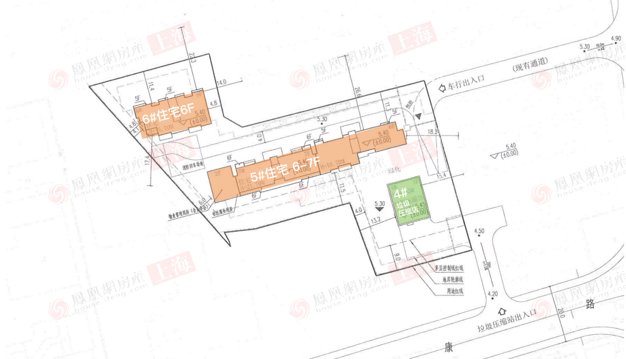
方案显示,绿地海富·东上海五期位于康沈公路梓康路,由两个小地块组成。其中西侧地块东至康沈公路、南至梓康路、西至待建海富城市花园五期(西)工程、北至海富城市花园四期。
地块为商住混合用地,总占地面积4196㎡,容积率2.03,总建筑面积约12376.54㎡,地上建筑面积8876.54㎡,计容建筑面积约8500㎡,计划建设1幢总高15层高层住宅、2幢商业以及配套用房。

东侧地块东至待建海富城市花园五期、南至待建地块、西至待建幼儿园地块、北至海富城市花园四期。
地块为住宅用地,总占地面积5160.6㎡,容积率1.1,总建筑面积约9888.14㎡,地上建筑面积5723.14㎡,计容建筑面积约5676㎡,计划建设2幢总高6-7层住宅以及1幢配套用房。

根据公开资料,绿地海富·东上海项目位于浦东康桥板块,项目上一次开盘时间是在2021年11月,当时共推出389套建面约80-165平米2-5房,均价6.2万/平米,社保系数是0.13分/月。项目在认购期间共1063组意向认购,认购率273%,入围分58.45。
免责声明:本文仅代表作者个人观点,与风财讯无关。其原创性以及文中陈述文字和内容未经本站证实,对本文以及其中全部或者部分内容、文字的真实性、完整性、及时性,本站不作任何保证或承诺,请读者仅作参考,请读者自行核实相关内容。
我来说两句0人参与 0评论
登录 后参与讨论
文明上网理性发言 0/400

