近日,位于龙岗南湾街道的综合体项目“特发臻华府”引发市场关注。项目主体建筑已拔地而起,施工进入地面多层阶段,同时首批户型图在网络上流出,释放出项目即将亮相的强烈信号。
据悉,这一总体量达55万平方米的TOD综合体有望最快于今年年底入市,为深圳中部新房市场注入新活力。

特发臻华府原为南湾中部片区土整项目,位于龙岗区南湾街道康乐社区,整备实施范围约45.76万㎡,采用“利益统筹+传统土地整备”的土地整备方式。本次迎来新进度的为首期住宅地块,总规划2623户,其中商品房2250户(包含回迁房,具体房源量暂不明确),保障房373户。
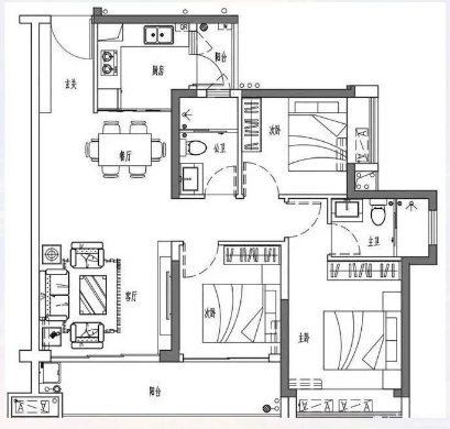
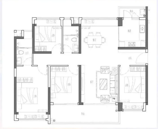
根据网传信息,项目为新规产品户型,首期主打建面约89-126㎡实用三至四房,得房率较高,瞄准刚需及改善型家庭的需求(仅供参考,以官方公示为准)。其设计注重实用性,契合深圳主流购房群体的居住偏好。
作为片区内稀缺的“双地铁”配套项目,特发臻华府的交通优势是其核心卖点。
项目已与地铁14号线石芽岭站G出口实现“无缝”衔接,搭乘快线4站即可直达福田岗厦北,高效通勤福田CBD。同时,在建的17号线南湾站也将与项目连接,未来将形成双地铁网络,极大增强出行的便捷性。
教育配套方面,特发自建一所18班幼儿园,且项目东侧地块已规划一所54班九年一贯制学校,预计2026年启动建设,计划与住宅同步交付使用。

价格方面,从周边市场情况来看,当前区域内三房总价范围约在420-500万元,参考附近2022年入市的特发香阅四季备案均价5.08万/㎡。而特发臻华府作为总建面约55万㎡的大型综合体新城,其凭借双地铁上盖、自带大型商业和学校等综合优势,预计将吸引大量关注福田、罗湖工作的通勤族,以及看重长期生活便利性的本地改善客群。

建面约89平户型

建面约129平户型
我来说两句

