1月19日,上海浦东新区上钢社区Z000101单元04-1地块项目建设工程设计方案的公示。作为红盘澐启滨江的全新姊妹地块,这宗滨江宅地的规划细节一经披露,便迅速引发市场关注。

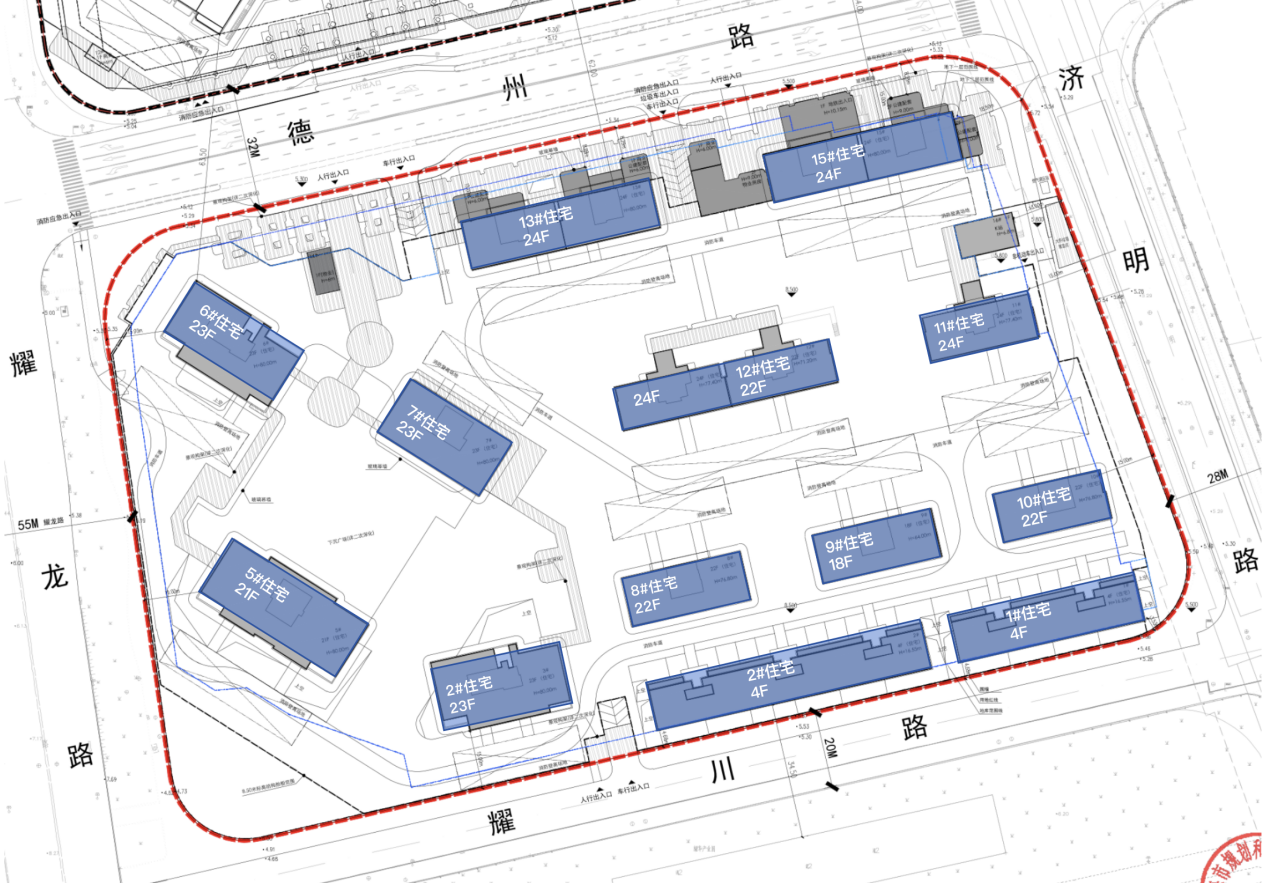
公示信息显示,该项目地处浦东新区上钢新村街道核心区位,四至范围清晰:东至济明路,南至耀川路,西至耀龙路,北至德州路,建设单位为上海新霁周企业发展有限公司。
从用地指标来看,该地块属性为三类住宅组团用地,整体规模颇具分量。具体数据显示,地块建设用地面积41891.44㎡,容积率2.9,计容建筑面积121685.18㎡,总建筑面积约194557㎡,其中地上建筑面积约134757㎡、地下建筑面积约59800㎡,属于典型的大型住宅社区体量。
在市场最为关注的产品规划层面,此次公示也给出了明确答案。根据规划,项目将打造13幢住宅,涵盖低密与高层两种业态,以满足不同改善客群需求。其中,2幢4F联排住宅沿南侧耀川路排布,主打低密改善产品;另有11幢18-24F高层住宅。值得关注的是,5#、6#、7#三栋高层采用大角度南偏西设计,以此获得更优的瞰江视野。

在社区营造与居住体验的打磨上,该地块规划暗藏巧思。地块整体比周边道路抬升约3米,是标准的抬板小区设计;同时,在地块西侧的3#、5#、6#、7#四栋住宅之间,规划有超大下沉庭院,这一设计可有效改善低区住户的景观视野,缓解传统高层社区低区采光、观景效果不佳的痛点。
产品面积段方面,网传信息显示将覆盖155-390㎡,包含155㎡、200㎡、260㎡、300㎡、390㎡多个梯度,精准锚定中高端改善客群。
公开资料显示,该地块于去年5月24日由上海城市更新建设发展有限公司以协议方式竞得,出让总价约85.4亿元,楼面价约7.03万元/平方米。
随后在8月1日,华润置地发布公告,与上海南房组成联合体,通过股权转让方式获取包括本地块在内的“耀华”及“余庆里”组合地块,转让总价约244.7亿元,华润置地与上海南房分别持股90%和10%。

作为同一区域的关联项目,澐启滨江(07-1地块)的市场表现可圈可点。该项目于2025年11月首开,备案均价约13.67万元/平方米,认购率达212%;12月加推时,备案均价小幅上涨至13.97万元/平方米,认购率为97%;进入2026年1月21日,项目推出第三批房源,为27套建筑面积约227-506平方米的大平层产品,备案均价攀升至15.89万元/平方米,认购首日意向认购率约37%。

我来说两句

