商办改住宅!上海徐汇长桥一地块规划调整正式获批
凤凰网房产上海 2026-02-05 19:11
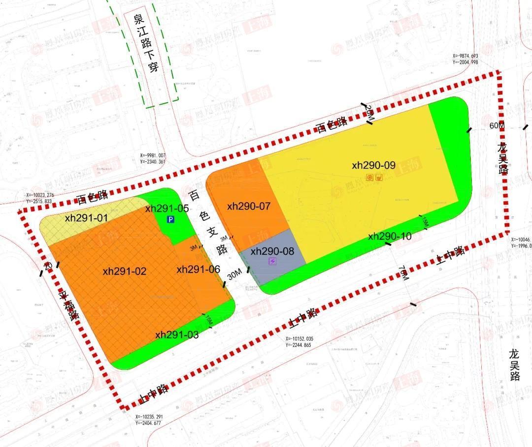
2月3日,《上海市徐汇区长桥社区S031201单元控制性详细规划xh290、xh291街坊局部调整》正式获得批复。这也标志着原规划为商业商办用途的xh290-09地块,正式转变为纯住宅用地,即将进入出让流程。

调整后,该地块性质为三类住宅用地,占地面积21036平方米,容积率1.8,建筑限高36米。未来有望打造为约10-11层的低密度小高层住宅。

据了解,该地块目前已实现“净地”状态,为后续开发建设奠定了良好基础。
从区位上看,地块坐落于内中环之间,紧邻龙吴路与中环线,距离在建轨交23号线上海植物园站直线仅约600米,未来轨道交通出行便利。此外,地块北侧距上海植物园约300米,东侧离黄浦江岸线直线距离仅约500米,坐拥难得的城市绿肺与滨江景观资源。

市场层面来看,徐汇长桥板块近期已有土地出让先例。在2026年一批次土拍中,徐汇区S031102单元S04-16地块(罗秀路地铁上盖项目)将于2026年3月13日出让,该地块为商住混合用地,出让面积2.75万平方米,容积率2.0,起始楼面价约4.85万元/平方米。
目前,长桥板块在售的新房项目有“海上清和玺”。该项目于2024年11月首次开盘,累计推出834套房源,截至当前已售547套,网签去化率约66%。
值得一提的是,相比上述S04-16地块及“海上清和玺”,本次调整的xh290-09地块位置更优,自身条件也更为突出,预计未来入市后将受到市场高度关注。
免责声明:本文仅代表作者个人观点,与风财讯无关。其原创性以及文中陈述文字和内容未经本站证实,对本文以及其中全部或者部分内容、文字的真实性、完整性、及时性,本站不作任何保证或承诺,请读者仅作参考,请读者自行核实相关内容。
我来说两句0人参与 0评论
登录 后参与讨论
文明上网理性发言 0/400

