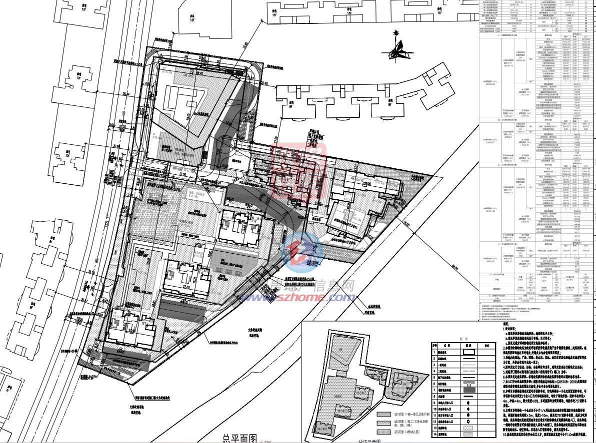
近日,南山湾上云启府项目(原新围工业区城市更新单元)总平面图的对外公示。
项目位于西丽街道西丽北路以东,红花一路以西,留仙大道以南,邻近地铁5、7号线双地铁站。
根据规划,项目开发建设用地面积20457.2㎡(含纳入零星用地面积324.1㎡),总建面约20万平,地上建筑面积148991㎡,容积率7.3;
其中住宅超6.5万㎡(其中保障房11452平米),商业、办公及旅馆业建筑约7.4万㎡,其他公共配套设施约8900㎡,另配建社区儿童游戏场地600㎡,社区体育活动场地1000㎡。



规划显示,项目由3栋住宅、1栋写字楼,和1所幼儿园组成;是一个集住宅、商业及写字楼于一体的城市综合体。
项目住宅总户数460户,其中,普通住宅共278户(普通住宅套内面积小于90㎡的只有56户),保障房182户。
从最近南山公示的保障性租赁住房来看,此项目182户为政府组织配租类保租房。

南山区西丽街道新围工业区城市更新单元于2021年3月列入《2021年深圳市南山区城市更新单元计划第一批计划》,于2024年9月更新单元规划已经深圳市城市规划委员会法定图则委员会审批通过。
该项目临近大沙河生态长廊活力水岸,是西丽湖国际科教城第一批开工建设的项目。
项目开发主体为深圳市恒泰置业发展有限公司。
股权上,恒泰置业由广州新沛投资有限公司持股90%。
深圳市顺和达实业有限公司持股10%。
广州新沛投资为新世界发展旗下间接全资持股公司。

项目最大王牌在于无可复制的区位。
项目邻近地铁5号线与7号线的换乘站——西丽站,是名副其实的“双地铁上盖”物业。
约1公里范围内,天虹商场、益田假日里等成熟商业环伺,生活便利度极高。
目前周边在售新房,如总章翡翠公馆、鼎胜金域阳光家园等,参考均价已在7.4-7.7万元/平方米区间。
我来说两句

