3月的北京楼市,正经历着回暖“小阳春”。但真实的市场,仍处于两极分化的显著状态。
3月6日开盘的朝阳奶西准现房项目御林湾,经过25天的等待,在3月31日迎来自己的官方网签数据:1套。值得注意的是,这个数据在4月1日更新为2套。

御林湾网签套数(3月31日显示数据)

御林湾网签套数(4月1日显示数据)
与上周刚刚开盘的中海·九树满和形成较为明显的反差:6天实现207套的网签数据。
即便网签存在一定滞后性,26天仅2套的网签成绩,从事实上证实了御林湾“低价砸盘”策略的失利。
总价520万起、最低首付80万、单价最低5.7万元/㎡,这样的门槛放在朝阳奶西板块,本该极具吸引力,却并未换来应有的高热度,御林湾的问题到底在哪?

御林湾售楼处现场
八年开发一波三折 产品规划先天受限
御林湾并非仓促入市的纯新盘,它背后有一段长达8年的漫长开发史。
2017年1月,首农旗下东洲房地产以24.958亿元拿下朝阳区崔各庄乡来广营北路R2二类居住用地、F1住宅混合公建用地土地使用权。
拿地之初,该地块规划的开工时间为2017年12月23日,竣工时间为2020年12月23日。然而,拿地后项目长期停滞,2019年首次动工后因安全事故停工,2023年复工又多次调整规划,直至2025年初方案才最终获批,并在去年11月官宣了项目案名,2026年3月6日低调开盘。

御林湾售楼处沙盘
从规划上来看,位于朝阳奶西板块的御林湾由南区与西区两个地块组成:
324地块(南区)规划12栋17-25层高层,商品房1487套,户型为90-155㎡两居至四居;
323地块(西区)容积率1.3,规划3栋6-7层洋房,仅76套,户型产品为213-220㎡大平层。
御林湾整体供货达到1563套,是个不折不扣的大盘项目。此外,项目还配建约2.3万㎡商业,以及人才房、中直机关家属楼,居住属性并不纯粹。
从开发现状看,御林湾已全部封顶,预计2027年交付,本该是“所见即所得”的安全优势,却因开发周期过长,埋下产品落后的伏笔。

御林湾高层区现状
产品代差明显 得房率与户型全面落后
御林湾最大的硬伤,是产品力没有跟上当下“好房子”标准的基本要求。即便开发商优化了公区、精装以及外立面,也难以弥补核心缺陷。
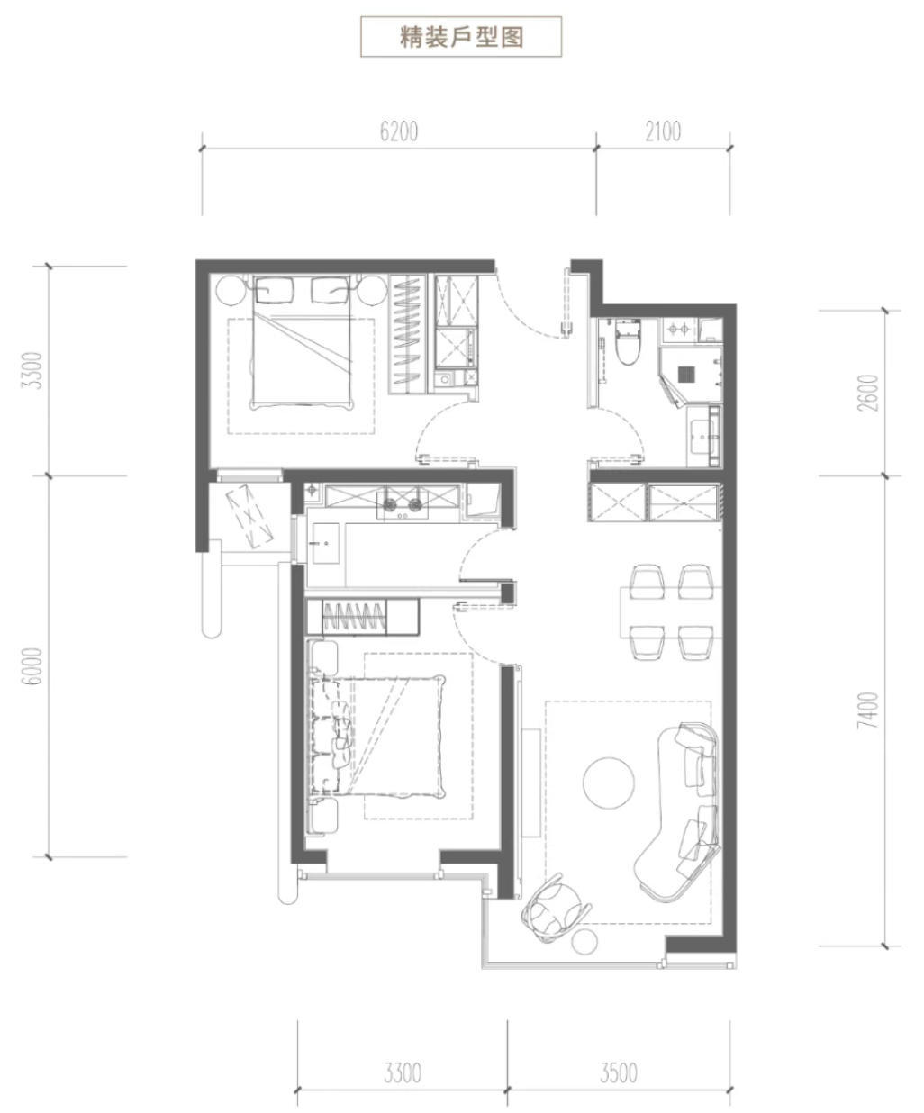
首先,得房率低于市场普遍水平。作为8年前规划的产品,其高层得房率为77%-88%,而当前市场主流新房得房率普遍超90%。看似单价便宜,折算套内面积后,实际单价优势并没有特别明显。
其次,户型设计过时。以三个主力户型为例,90㎡的两居户型,这个面积段做到三室一卫甚至两卫的项目不在少数,而御林湾只做到了两室一卫,且存在暗卫、南北不通透、户型不方正等问题,虽然做到了“独立玄关+家政间”提升了收纳空间,但户型设计的核心问题无法弥补。

御林湾90㎡户型图
125㎡三居户型做到了南北通透,但南向仅两面宽,采光面不足,且仍然有缺角;140㎡三居户型,仍然没有做到方方正正,进深接近面宽2倍,客厅面宽也只有约4.2米,且存在一个暗卫。
可以看到,户型产品从刚需到改善,都有明显的设计不足,与当下市场产品相比存在较大差距。
奶西板块兑现乏力 配套与交通硬伤难掩
御林湾卖不动,不只是项目产品问题,亦是奶西板块整体遇冷的缩影。
曾经的奶西顶着“望京改善后花园”光环,2022年10月中建宸园以近9万元/㎡的价格入市,开盘即售罄,一度成为朝阳楼市热点。
如今,先规划后开发的奶西板块,住宅项目落地的频率超过周边配套的兑现,导致预期快速回落。

御林湾周边城市面貌现状
没有地铁,一直是奶西板块的一大硬伤。御林湾距离13号线北苑站约2.6公里、17号线红军营站约3公里,步行无法抵达,且短期没有新增地铁线路的规划。在北京楼市,地铁缺失直接影响流通性与保值性。
配套落地方面,仅有芳草地国际学校东洲校区一所现成学校,规划商业迟迟未动,加上板块内没有产业支撑,这里极有可能沦为纯居住“睡城”。
换句话说,御林湾错过了奶西板块的红利期,购房者不敢轻易出手也在情理之中。

御林湾区位图
83折低价砸盘 脱离产品力的优惠无效
回顾御林湾的开盘价格,可谓诚意十足:南区83折,西区85折,折后均价6.1-6.3万元/㎡,单价最低5.7万元/㎡,总价最低上车门槛520万元起。
对比周边新盘来看,望京云尚8.19万元/㎡、望京国誉府8.97万元/㎡、中建宸园约8.8万元/㎡,御林湾单价低2万+,一套100㎡房源便宜约200万。
如此价格不可为没有吸引力,但市场给出明确答案:没有产品力的低价格,是不具备竞争力的。
被称为市场“搅局者”、“价格屠夫”的御林湾,降价没能换来较高的成交量,反而击穿板块价格体系,让市场更谨慎。

御林湾高层区现状
写在最后:
3月的北京楼市,迎来货真价实的“小阳春”,昌平的国贤府PARK、星寰时代,通州的中海·九树满和等项目纷纷热销,而御林湾蓄力已久、大幅降价却没能收获漂亮的开盘数据。
这恰恰说明,当下北京买房逻辑已变:“性价比”已经很难打动购房者,“质价比”才是制胜市场的关键。
我来说两句

