外高桥上新了,还是一幅地铁宅地
凤凰网房产上海 2026-04-01 19:14
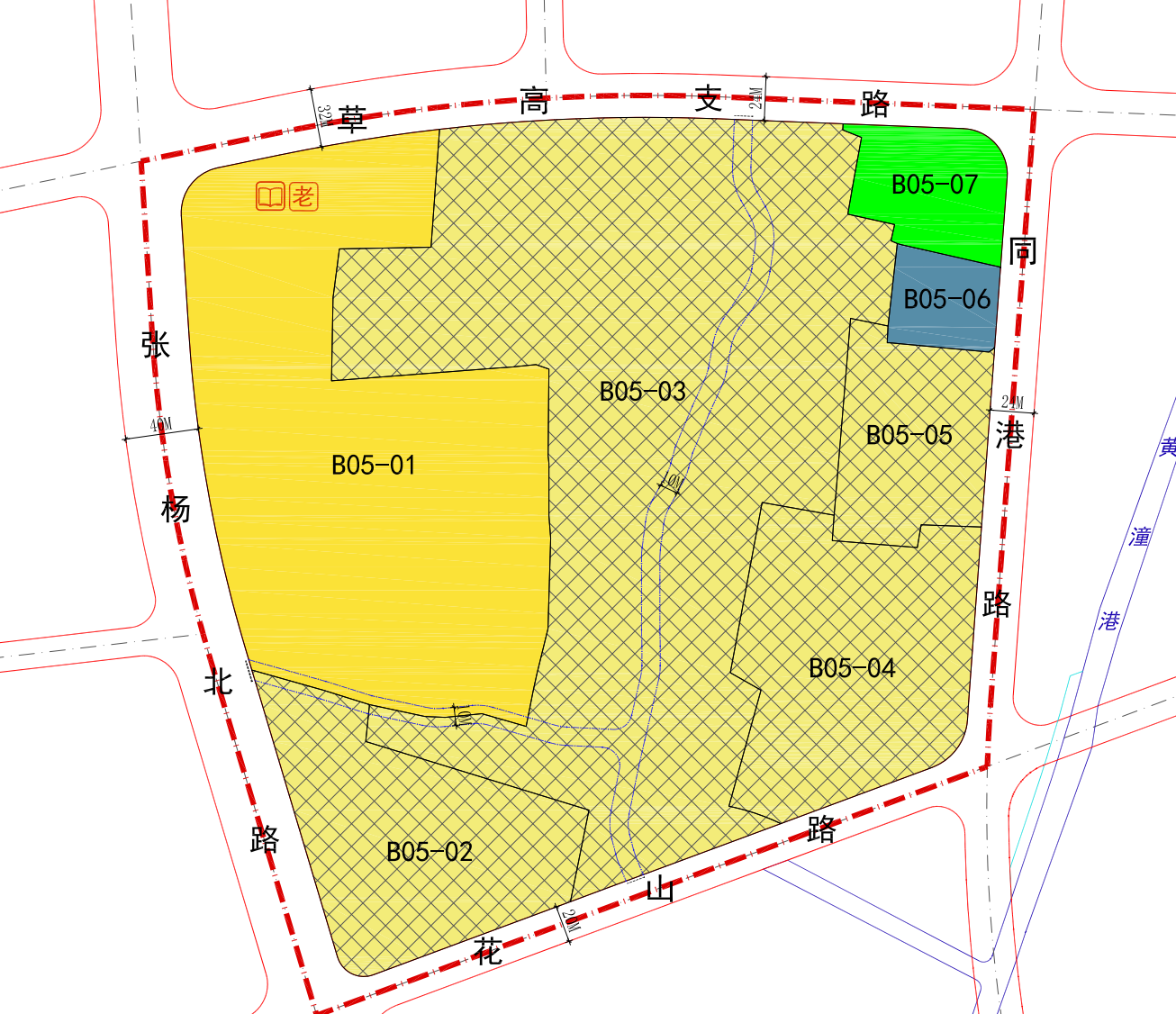
3月31日,《上海市浦东新区高桥镇PD-03(GQ)单元控制性详细规划B05街坊局部调整》正式获批。

根据批复方案,涉及地块为B05-01,地块用地面积44933㎡,性质为Rr3(三类住宅混合用地),容积率2.5,建筑面积约112332.5㎡,限高60米,典型的高层住宅社区。
同时地块内含文化活动室1个,建筑面积100m;含老年活动室1个,建筑面积200m。临街布置,方便到达。

位置方面,地块位于外高桥板块,距离6/10号线港城路站约600米,轨交出行条件较为便利。不过,周边环境相对一般,以老旧小区为主,商业配套停留在基础层面,缺乏大型商业综合体。
与此同时,周边市场的表现也值得留意。去年上海第十轮集中供地中,越秀以25.6086亿元底价竞得森兰板块的E04B-10地块,成交楼板价约38035元/㎡,溢价率为0%。森兰作为浦东北部认可度较高的板块,尚且底价成交,一定程度上反映出房企在当前市场环境下的谨慎态度。
新房市场方面,去年5月板块内的阳明花园推出63套现房,出现了“零认购”的情况,最终项目取消公证摇号并提前开盘,板块内新房去化压力可见一斑。
综合来看,这宗地块虽然轨交条件优势明显,但周边界面和配套短板同样突出,叠加当前区域市场的冷清表现,未来入市能否打破僵局,仍有待观察。
免责声明:本文仅代表作者个人观点,与风财讯无关。其原创性以及文中陈述文字和内容未经本站证实,对本文以及其中全部或者部分内容、文字的真实性、完整性、及时性,本站不作任何保证或承诺,请读者仅作参考,请读者自行核实相关内容。
我来说两句0人参与 0评论
登录 后参与讨论
文明上网理性发言 0/400

