4月15日,三林滨江南片地区(西片区)14单元新建工程21-17地块新建工程设计方案正式公示。该地块即前滩元境项目的组成部分,也是继24-02、31-02地块之后,该项目公示的第三宗住宅子地块。
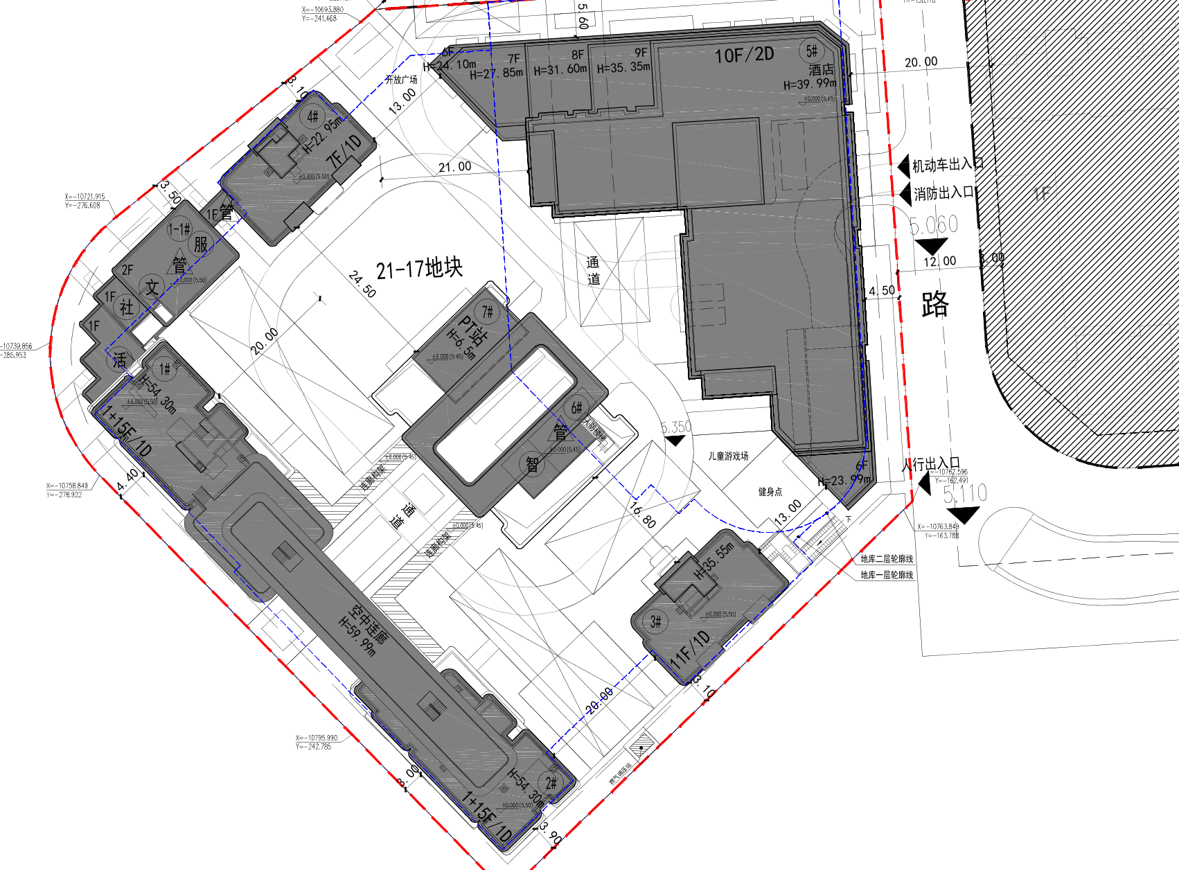
根据规划,21-17地块为三类住宅组团用地和商业服务业用地,东至皓明路,南至21-08绿化,西至21-08绿化,北至21-16地块。用地面积10914.37平方米,总建筑面积48572.99平方米,其中计容面积32743.11平方米,地上建筑面积35648.18平方米,地下建筑面积12924.81平方米。
地块将建设4幢7至15层住宅以及1幢总高5层的酒店。具体来看,1#、2#楼总高15层,两幢楼之间设有空中连廊;3#楼总高11层,4#楼总高7层。酒店位于地块内,将进一步丰富区域的商业服务配套。

至此,前滩元境项目已有三宗子地块规划亮相。此前公示的24-02地块拟建5至7层洋房产品,一楼全架空,社区内配备下沉式庭院及儿童游乐场,同时规划部分商业配套。
31-02地块则将建设2至6层住宅,产品形态预计为洋房加四层叠拼。加上21-17地块的高层住宅及酒店,整个项目呈现出高低错落、业态复合的规划格局。
这三宗地块均属于中建壹品与湖北联投于2025年11月通过股权收购拿下的前滩滨江核心资产包。
2025年11月17日,联合体以37.43亿元总价竞得上海建绽置业有限公司95%股权及相关债权,进而获得浦东三林滨江南片14单元五宗地块,分别为21-16、21-17、24-01、24-02及31-02地块,土地性质涵盖普通商品房、商业、办公楼等。
从区位看,项目位于三林滨江浩昌路南侧,紧邻前滩辐射区。周边在售项目前滩滨江道于今年1月25日首开,推出122套建面约89至152平方米公寓,备案均价11.65万元/平方米,开盘当日去化率约70%。
据悉,前滩元境目前已开始建档,预计本周取证启动认筹,首开房源为24-02地块,将推出68套建面约109平方米和139平方米房源,过会均价约12.18万元/平方米。

我来说两句

