拿地近3个月,青浦区QPC1-0009单元75-04地块(即宇诚集团青浦新城项目)设计方案正式公示。
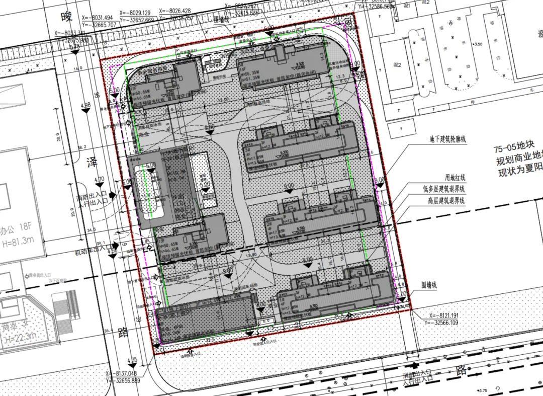
根据公示内容,项目将规划建设3幢3层别墅、3幢13–14层高层商品住宅及1幢3层商业楼,部分高层住宅首层设计为架空空间。整体布局呈现西高东低、前低后高的形态。

该地块于去年9月4日由宇诚集团股份有限公司以底价27047万元竞得,成交楼面价15505元/㎡。项目用地性质为三类住宅组团用地,其中住宅占比85%,商业服务业占比15%。建设用地面积9690.85㎡,容积率1.8,总建筑面积29180.0㎡,包含计容面积17431.73㎡及不计容面积6006.27㎡,建筑限高60米。

公开资料显示,宇诚集团成立于1999年6月,注册于浙江湖州德清县,是一家涵盖实业投资、房地产开发、酒店文旅、矿业等业务的综合性企业。其地产业务长期深耕湖州,并在内蒙古、海南、江苏等地有所布局。因总部位于德清且注重产品品质,宇诚在当地市场被誉为“德清小绿城”。
事实上,宇诚与绿城集团之间存在较多业务关联。双方曾在德清合作开发“宸园”等项目,而宇诚独立打造的蓝城·桂语江南、蓝城·桂语兰庭等项目,也在产品理念与设计风格上与绿城“桂语系”较为接近。2023年,宇诚在北京大兴三合庄地块竞拍中力克15家房企,以38.18亿元总价及25000㎡现房销售面积竞得该地块。此后项目引入绿城共同开发,定名为“绿城宇诚晓月和风”。
据悉,此次青浦新城项目也将由绿城代建,项目官方微信公众号“宸玺潮鸣”已于1月9日上线。产品方面,计划推出建面约120–170㎡平层及约170–188㎡叠墅,装修标准预计超过5000元/㎡。
地段方面,项目地处青浦新城板块,紧邻轨交17号线青浦新城站,轨道交通出行便捷。不过,该板块目前新房去化速度相对一般。同片区内新盘如盘古箐峰华庭,销售表现平缓,项目于2024年10月首开,一批次均价45000元/㎡,二批次均价47693元/㎡,累计推售468套房源,目前网签去化率约39%。

我来说两句

